River Modern Floor Plan
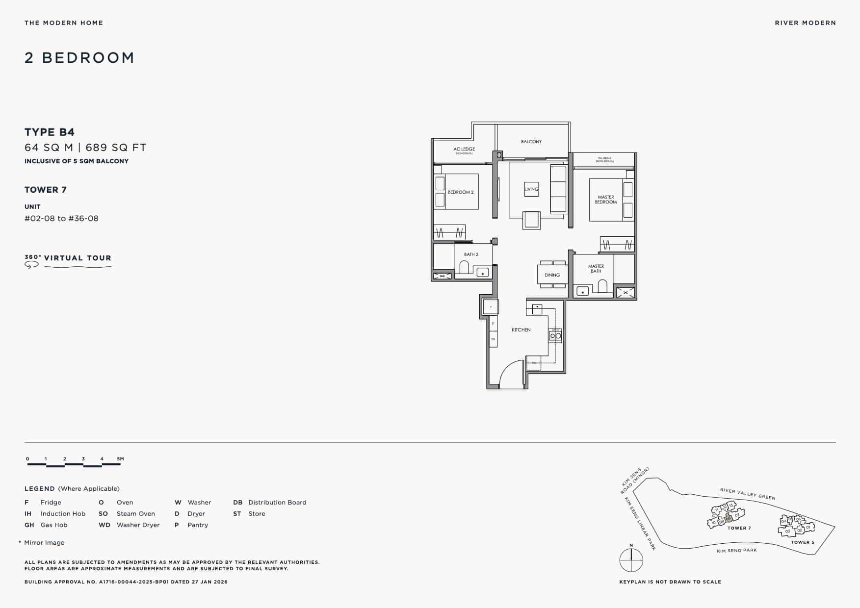
2 Bedroom
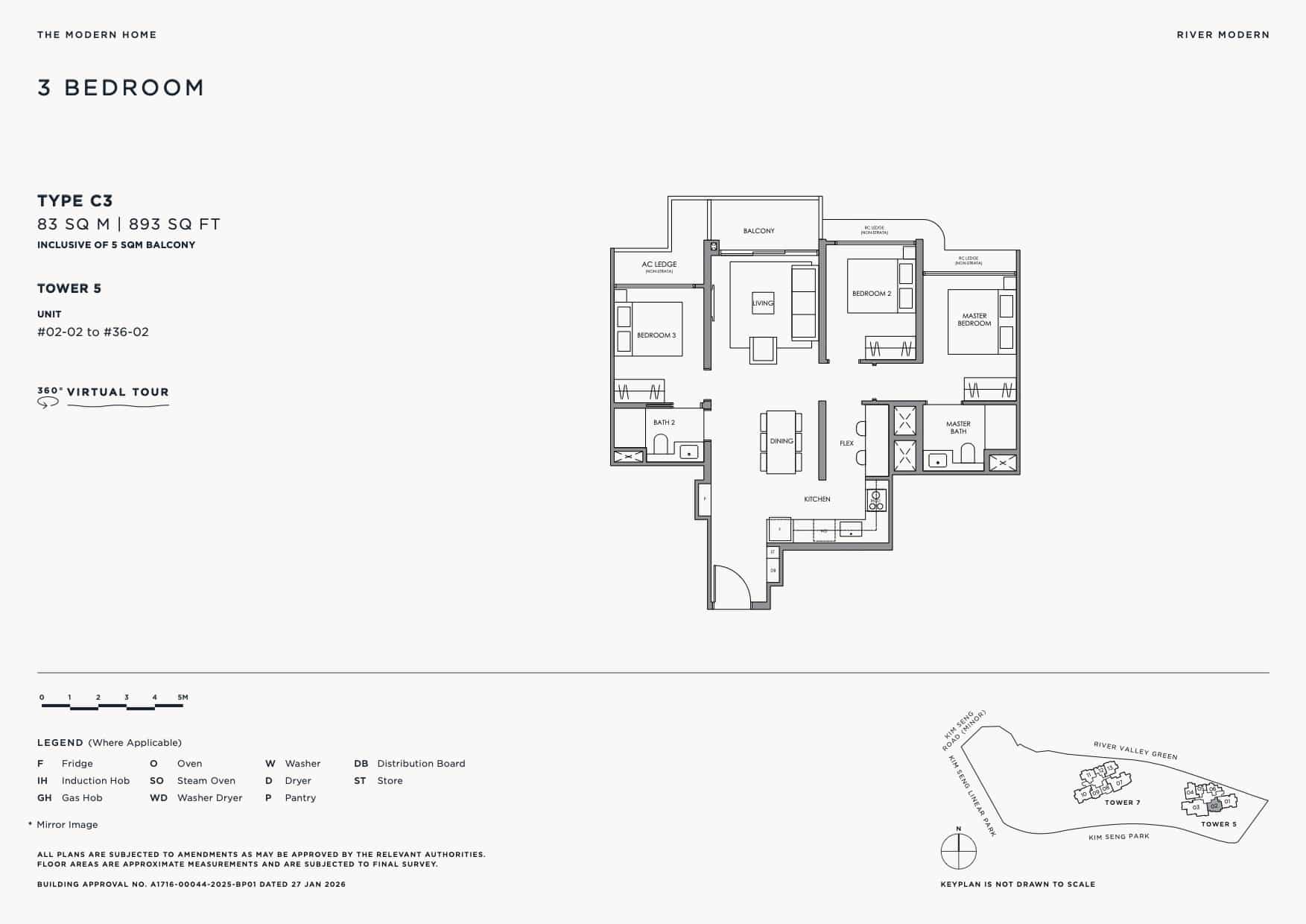
3 Bedroom
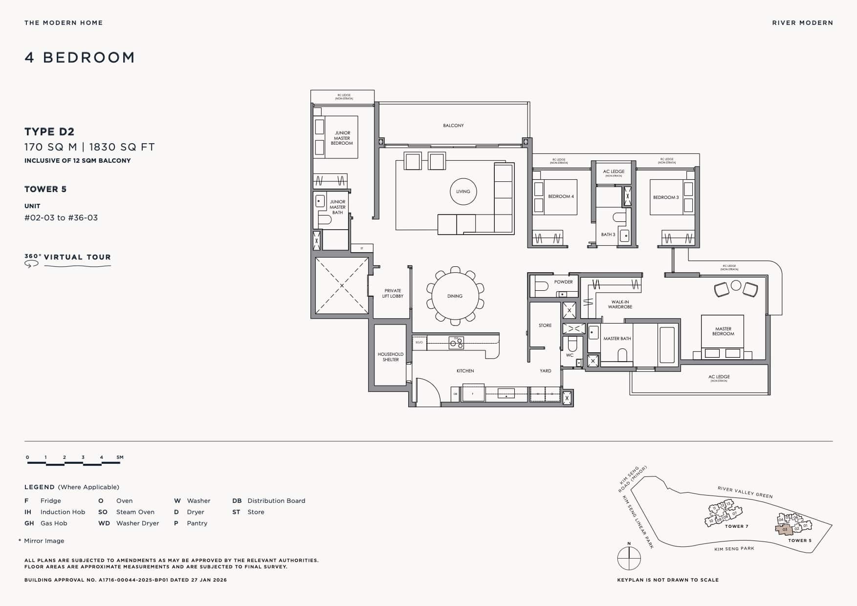
4 Bedroom
Book An Appointment to view River Modern ShowFlat & get VVIP Discounts (Limited Time), Direct Developer Price, & Beautiful Brochure. Guaranteed with Best Price Possible.
OR
Fill up the form on the right and get a copy of River Modern Price List, E-Brochure, and Latest Updates!
Strictly no spam policy.
